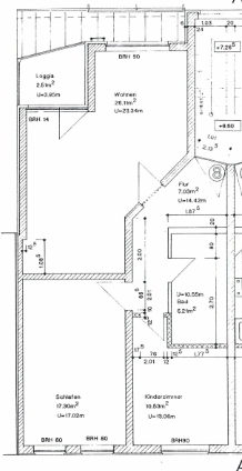
Dein neues Zuhause: Renovierte 3-Raum Wohnung mit Balkon

Diese einzigartige Wohnung überzeugt durch einen Balkon sowie einer erwerbbaren Einbauküche. Sie ist ab dem 01.03.2026 bezugsfrei. Zögern Sie nicht lange und vereinbaren Sie einen Besichtigungstermin.

Fakten

Ihr habt Interesse oder offene Fragen zur Immobilie? Tretet gerne über sämtliche Kontaktmöglichkeiten an uns heran